Henry Wood Hall
Henry Wood Hall, previously named Holy Trinity Church, was built in Trinity Church Square in 1824
Image courtesy of London Picture Archive
Holy Trinity Church chronology
1820 - Authorisation of church erection on the Trinity Estate. Competition won by Francis Bedford.
1822 - Plans for the layout of the square commenced.
1823 - Foundation stone laid by Archbishop of Canterbury on 2nd June.
1824 - Church consecrated by Archbishop of Canterbury on 16th December.
1961 - Church disused.
1968 - Pastoral Measures Act. The first church to be declared redundant.
Building the church
The Act of 1820 authorised the erection of a church on the Trinity Estate and trustees were appointed.
The site for the church was previously a tenter ground which was an open area where cloth merchants stretched their samples on ‘tenterhooks’ in order to dry them. The land was given by the Trinity Brethren and the trustees opened a public competition for the design. The commission was given to Francis Octavius Bedford, but not before vituperative letters had been written about the attempts of the trustees to favour a relation of one of their number, Mr Robins.
William Chadwick obtained the contract for the mason’s work and Elizabeth Broomfield for the bricklayer’s work. The church was built for a total cost of £16,295 with the aid of a parliamentary grant. The Archbishop of Canterbury laid the foundation stone on 2nd June 1823 and consecrated the church on 16th December 1824.
Holy Trinity Churchyard. Image courtesy of Dan Silva.
Image courtesy of British History Online
Bedford had already designed and built several churches in London. Holy Trinity Church closely resembled his ‘Waterloo’ Church at St. Luke’s Norwood, with its Corinthian portico surmounted by a tower and octagonal lantern above. The exterior was faced with Bath stone and the roofs covered in copper. The interior of the church was austere, with a roof of unbroken span. The bareness of the walls was relieved by a frieze of honeysuckle ornament and by shallow pilasters, with honeysuckle ornament to the heads, ranging from floor to ceiling. The pilasters supported corbels on which rested the panelled beams dividing the plaster ceiling into fifteen coffered bays, each with a ceiling rosette in the centre.
The interior
There were galleries to the north, south and west sides borne on Greek Doric columns. Two staircases in the portico gave access to the gallery, muniment room and to two small gallery recesses above, with open balustrades and which were intended for charity children.
The only crypt entrance was provided by an external staircase on the east side. Lighting was originally provided by oil and later by gas lights. Two boilers in the crypt provided heating via large grilles in the nave floor. The organ and casework were installed by Hugh Russell and Sons in 1824.
In 1898 the chancel was altered and the galleries cut back under the supervision of Henry Jarvis and Son. The underpinning of the altar was carried out at this time, with a large area of steps and masonry also being added. The wooden reredos and a decorated window surround were added to the east side in 1930 by Martin Travers.
Interior view of the east end of Holy Trinity Church, Newington, Southwark, London, 1826. Artist: G Yates. Image courtesy of Alamy.
The garden and railings
Image courtesy of British History Online
The garden, which extended across the whole of the northeast front of the church, was laid out by William Chadwick. The original stone gate piers and the old stone kerbs still remain. The original fine cast-iron railings were removed during World War II. Replica railings, made to the old design, were installed in the 1970s.
War damage and fire
The church was slightly damaged in World War II and after 1944 the main aisle was no longer used. Weddings and funerals took place in the side chapel and the crypt until the church was closed as unsafe in 1961.
In 1973, when plans to convert it into an orchestral rehearsal hall were well underway, the building burnt overnight in a spectacular fire, which destroyed most of the interior. It was reconstructed as Henry Wood Hall.
Map of bomb sites across London. Image courtesy of London Layer.
Holy Trinity Church, 1950, north-west elevation and north-east elevation and block plan. Image courtesy of British History Online.
Fire and war damage at the church
Holy Trinity Church, 1950, elevations and block plan. Image courtesy of British History Online.
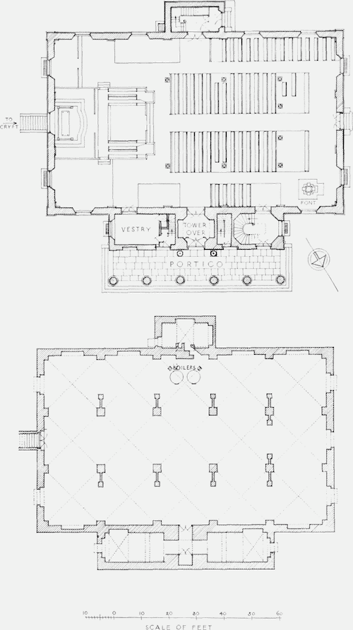
Holy Trinity Church, ground floor and crypt plans, 1950. Image courtesy of British History Online.
Henry Wood Hall - London's first purpose-built home for orchestral rehearsals
Henry Wood Hall London's first purpose-built home for Orchestral rehearsals and recording venue.
Large enough for a full symphony orchestra and choir, the Hall has been the scene of constant musical activity for over thirty years. The principal orchestra at the Hall is the London Philharmonic.
Members of the public cannot attend rehearsals at Henry Wood Hall, but most of the orchestras have their own Friends schemes which often allow access to rehearsals. TNRA is grateful to HWH management for allowing us the use of the hall for meetings, concerts, porch sales and other events.
History of Henry Wood Hall
In the 1970s, London's orchestras had been searching for some time for a suitable permanent rehearsal space.
Arup Associates were appointed late in 1970 by the London Philharmonic and London Symphony Orchestras to carry out an assessment of various churches with a view to their conversion into an orchestral rehearsal hall. Earlier correspondence had also referred to the possible use of this hall as a recording studio. The opportunity of creating a permanent rehearsal and recording hall for London's two oldest self-governing orchestras and of restoring a fine old church created a unique project.
Several possible churches in south London were investigated by Mary Lawrence (whose husband, Harold Lawrence, was then manager of the LSO) and Arup Associates to find a building suitable for conversion into a rehearsal and recording studio. A summary of the findings was presented in a preliminary report in March 1971, which concluded:
Holy Trinity Church is a redundant church. It is a classical revival church, rectangular in plan, standing in the centre of an early nineteenth-century square, now designated a conservation area. The church had now been disused for some ten years and the subject of many planning applications for schemes as varied as petrol stations and ornamental gardens.
The Disused Churches Committee of the Diocese is required to dispose of the church as soon as possible and there was an indication from the planning authority that an application for a change of use would be favourably received. The acoustics are excellent and the church is in one of the quietest and most beautiful squares of south London. Holy Trinity Church has been declared a building of architectural merit and is protected as a Grade Two listed building.
Image courtesy of Henry Wood Hall
Dress rehearsal
On 10th December 1972, a full-scale test rehearsal was held in the church when the London Philharmonic (LPO) and the London Symphony Orchestras (LSO) - all the players wearing protective helmets against the risk of falling plaster - each visited the church with their instruments. The building had been swept out and temporary lighting and heating brought in.
Players sat on the old church chairs, which were last used during war-time air raids, and played a programme of Bach, Stravinsky, Elgar, Ravel, Haydn and Brahms, while a team of acoustic and recording engineers listened and made tests. It was a memorable day, highlighted by the difficulty of trying to play in draughty, dirty and dilapidated surroundings, but it helped to convince everyone that this was indeed an ideal place for making music.
Fundraising and planning
The LPO and LSO then asked some of their friends to set up a trust, the Southwark Rehearsal Hall Trust, to raise the necessary funds for the rebuilding scheme. The contractors were originally instructed on a £330,000 contract which, at the time of opening, had risen to very nearly £700,000. Southwark Rehearsal Hall Ltd was also formed with the Earl of Shaftesbury, Sir Jack Lyons and the chairman and manager of each orchestra as the first directors of the company.
The church was purchased and returned to the original donors, the Corporation of Trinity House, owners of the estate for several centuries. In January 1973, a 99-year lease for Holy Trinity Church was signed with the Elder Brethren of Trinity House. A peppercorn rent was set, the lease requiring the trust to restore the church at its own expense. In the spring of 1974, Terry Palmer was appointed manager of the building.
The most important factor at the next stage was the fullest consultation with the management of both orchestras and with recording companies, the people who knew the practical problems of rehearsing and recording in London. An important consideration was that all the renovations and improvements should be in style with the period of the building, particularly since the Corporation of Trinity House, our landlords, were restoring the surrounding square.
Image courtesy of the LSO
Revival complete
Image courtesy of the LSO
The Minister for the Arts, Hugh Jenkins, tapped the last piece of roof copper home in a topping-out ceremony on 13 June 1974. On the evening of 16 June 1975, a concert was given by members of the London Philharmonic and London Symphony Orchestras to an invited audience to inaugurate the newly named Henry Wood Hall.
The clock
There are four clock faces on the tower of HWH though until recently none of them had told the time for many years. When the face on the north side fell off it was sent for repair. It returned with a clock mechanism attached and was put back up in December 2020. Residents and passers-by on the north side of TCS can now see the time but the other faces are in a sorry state.
Sir Henry Wood
The hall was so named after receiving a substantial donation from the Henry Wood Fund (set up for rebuilding the blitzed Queen's Hall, which never happened). Sir Henry Wood received this and other accolades for bringing classical music to the masses through The Proms, which he helped start and conducted for many years.
Since 1975, the Henry Wood Hall has been the scene of constant musical activity. Besides rehearsals for all the leading London orchestras and chamber groups, there has been constant recording activity covering all types of music in the classical repertoire, from solo pianists to full-scale grand opera.
Henry Wood Hall in winter
Henry Wood Hall in autumn
Henry Wood Hall in spring
Henry Wood Hall in summer
Henry Wood Hall in winter

